宁波华商汇东邻市集:定义“菜场 + 商业”新高度!
宁波华商汇携东邻市集同日启幕,东部新城商业迎新篇!
10月25日,宁波华商集团倾力打造的1.2万平方米社区商业综合体——华商汇正式开门迎客,其核心组成部分东邻市集同步启幕,以“菜场+商场”的创新融合模式,为周边7000多户、1.8万居民带来全新的生活消费体验。
一、项目背景
作为宁波东部新城核心区重点打造的社区商业综合体,华商汇于2025年10月25日正式开门迎客,项目坐落于百丈东路与河清南路交界处,总建筑面积达1.2万平方米,是集民生消费、品质体验、便民服务于一体的智慧邻里中心,以“菜场+商场”的创新融合模式,实现了供给品质与场景体验的双重跃升。
项目以“好吃、好健康、好生活”为核心定位,突破传统社区商业的单调格局,创新性地将“烟火菜场”与“时尚商业”深度融合——既保留百姓熟悉的民生消费场景,又引入符合年轻群体需求的潮流业态,形成覆盖全龄层、全时段的消费生态。
项目概况
项目名称:华商汇·东邻市集
项目地址:宁波市鄞州区邱隘镇琼林路 245(百丈东路与河清南路交界处)
项目面积:约1.2万平方米
菜市面积:约3000平方米
在华商汇开业之前,该区域集中了多个新建住宅小区,由于配套商业尚未完善,大型商超或传统菜场距离较远,居民为了买些新鲜蔬菜,只能依赖小区门口的小型便利店,不仅品类单一、选择有限,价格还偏高,食材新鲜度与性价比难以兼顾。而这个全新的商业综合体正处于周边多个新建小区的几何中心位置,精准切中并解决了该区域此前长期存在的消费痛点。
东邻市集主入口位于华商汇一楼,作为整个商业综合体的“民生底色”,菜市不仅是宁波华商集团旗下华商汇的核心组成部分,还是街道新时代文明实践分中心重点扶持打造的便民服务示范项目。
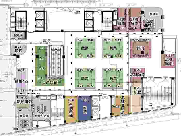
市场一层平面图
市场二层平面图
在这个1.2万平方米的社区商业综合体内,东邻市集的生鲜农产品与商场内的多元业态形成了完美互补。约3000平方米的东邻市集主体空间,稳稳承载着周边7000余户家庭的日常生鲜供给核心职能:海鲜、蔬菜水果、禽肉蛋、卤味小食等业态一应俱全,一站式解决从早到晚的生活所需。
二、烟火根基:生鲜与便民配套的组合·
相较于传统菜场的刻板印象,东邻通过前期精准的业态规划与后期精细化的运营磨合,构建起“民生需求+品质消费”的服务闭环,无论是注重性价比的老年群体、追求便捷高效的上班族,还是喜爱新鲜体验的年轻消费者,都能在这里找到专属的消费场景与情感归属感。
而在高颜值的外表之下,市集更以“省钱不省质、省心更贴心”为核心理念,扎实筑牢便民根基:业态上不仅全面覆盖了传统菜场必备的新鲜蔬果、鲜活禽肉蛋、现捞海鲜等全品类生鲜农产品,还创新融入了杂粮干货、特色腌腊、现做面点等适配现代家庭生活的多元品类;开业首日便成为居民朋友圈里的“网红打卡点”。
供应端更是通过“基地直采+集中配送”的规模化模式,直接对接宁波本地及周边的农产品基地,砍掉了中间商、批发商等多个环节,既保证了食材的新鲜度,又实现了源头稳价保供。
日常不仅常态化供应“特价菜”等惠民品,每月还定期开展“购物赠鸡蛋”“满额立减”等主题活动,让“省钱更省心”成为深入人心的核心标签。开业初期推出的“省钱这件事就交给我”惠民活动更是人气爆棚,让市民切实感受到了实惠。
三、品质延伸:健康与消费的体验升级·
商场的业态让东邻市集彻底跳出“买菜即走”的传统消费逻辑,形成“采买-体验”的高效联动效应。
核心业态精心规划为三大功能板块:
01、场景化家电集合店
精准对接一层菜场的烹饪场景需求,提供从厨房小家电到餐具厨具的全品类商品,居民买完生鲜食材后可直接选购适配厨具,实现“采买-装备”的一站式解决;
02、健康服务集群
整合养生馆与滋补品店两大业态,既适配中老年群体的日常养生需求,也满足年轻人的礼品选购需求;
03、潮流运动休闲区
引入专业连锁健身房,配备齐全的健身器材与资深私教团队,方便年轻人买完食材后顺路健身,形成“家庭采买+个人运动”的高效生活模式,充分覆盖多元客群需求。
此外,商场二层还专门规划了共享休憩区,方便居民采买间隙休息调整,细节之处尽显项目的人文关怀温度。
如果说华商汇的商场业态便是满足居民品质需求的“品质外延”,那么东邻市集则是华商汇扎根民生的“烟火内核”。
四、民生配套:全时餐饮,串联日夜的生活·
除主体建筑内的分层核心业态外,华商汇沿百丈东路、河清南路布局的沿街商铺,构成了项目的“全时生活配套带”,进一步强化“不止菜场、更是生活”的多元服务属性。这里不仅集结了烧鹅简餐、海鲜牛肉面、汉堡店等主流正餐品牌,更搭配了地道早餐铺、特色卤味店等亲民小食;从清晨的第一杯提神咖啡,到中午的便捷正餐,再到深夜的解馋小食,全面覆盖居民不同时段的就餐需求,真正让“一站式消费”的理念落地生根。
上班族可清晨在早餐铺买完早点后,顺路到市集带份新鲜生鲜;下班后既能在正餐店解决晚餐,又能顺便采购次日食材,极大提升了消费便捷性与场景粘性。
四、社区商业的三重革命价值·
东邻市集在社区运营优化、商业业态迭代、民生服务升级三个维度,实现了突破性革新,为许多待升级迭代d社区商业迭代升级,提供了极具可复制性的标杆样本。
01、民生服务的精准补位。
项目落地前,东部新城核心区虽新建小区密集,但社区商业配套相对滞后,东邻市集凭借核心区位优势(邱隘镇琼林路245号)与完善的交通配套(地铁5号线柳隘站步行10分钟可达、3路等多条公交直达、自驾享3小时免费停车),精准破解了“买菜难、消费散”的民生难题。
02、社区商业的业态革新。
尽管宁波本地不乏“菜场+商业”的初步尝试。相较于部分项目仅停留在“同一空间内不同业态并存”的简单叠加,这里通过“生鲜+健康+运动+餐饮”的科学分层规划,构建起“15分钟优质生活圈”的服务闭环,大幅提升了商业空间的利用效率与核心竞争力。
03、邻里关系的空间重构。
市集更突破了单纯消费场所的属性。“消费场景+社交场景”的双重营造,让邻里中心重新回归“熟人社区”的情感功能,有效强化了社区凝聚力。
随着后续直播卖菜、即时配送等数字化服务的逐步落地,以及商场与市集之间客户引流、活动联动等运营协同的不断深化,这个集烟火气与时尚感于一体的商业综合体,不仅有望成为东部新城社区商业的新标杆,更将为宁波城市商业的多元化、精细化发展注入全新活力,为其他区域的社区商业升级提供宝贵的实践经验。